Entscheidungshilfe / mehr Tageslicht in der Küche
- Ralf Femmer | KS Freiberg
- Senior Member

- Beiträge: 903
- Registriert: Mo 5. Mai 2003, 13:03
- Wohnort: Zittau / Sachsen
- Kontaktdaten:
Re:Entscheidungshilfe / mehr Tageslicht in der Küche
Hallo Ullrike,
ich muss gestehen, dasa ich immer ein bischen Probleme mit so einer massiven Anordnung von Glas in Ausfachungen habe.
Sicherlich hat das immer in irgend einer Form seine Berechtigung, Allerdings würde ich in der Fassade immer Versuchen, darauf zu verzichten.
Unsere Küche ist auch reecht dunkel und wir haben uns entschieden, damit zu leben. Aber das ist unsere persönliche Entscheidung.
Eine Anordnung von Glasausfachungen über den Türen kann ich mir durchaus Reizvoll vorstellen.
Alternativ würde ich vielleicht eine ganze Wand in Betracht ziehen.
Die Frage ist allerdings, wenn einzelne Gefache kein Dogma sind, was spräche dann dagegen, z.B. die Wand zum Flur komplett ab dem ersten Brüstungsriegel zu Verglasen oder sogar einfach offen zu lassen?
FG
Ralf
ich muss gestehen, dasa ich immer ein bischen Probleme mit so einer massiven Anordnung von Glas in Ausfachungen habe.
Sicherlich hat das immer in irgend einer Form seine Berechtigung, Allerdings würde ich in der Fassade immer Versuchen, darauf zu verzichten.
Unsere Küche ist auch reecht dunkel und wir haben uns entschieden, damit zu leben. Aber das ist unsere persönliche Entscheidung.
Eine Anordnung von Glasausfachungen über den Türen kann ich mir durchaus Reizvoll vorstellen.
Alternativ würde ich vielleicht eine ganze Wand in Betracht ziehen.
Die Frage ist allerdings, wenn einzelne Gefache kein Dogma sind, was spräche dann dagegen, z.B. die Wand zum Flur komplett ab dem ersten Brüstungsriegel zu Verglasen oder sogar einfach offen zu lassen?
FG
Ralf
Äußerungen im Forum sind lediglich allgemeine Betrachtungen und daher reine Meinungsäußerungen. Bei Rechtsfragen wird in jedem Fall eine Beratung durch einen Rechtsanwalt empfohlen, bei Sanierungsproblemen eine Einzelberatung durch einen Sachkundigen vor Ort.
-
Ulrike Nolte
- Nicht angemeldeter User

Re:Entscheidungshilfe / mehr Tageslicht in der Küche
Hallo Ralf,
aufgrund der Anordnung der Wände, Türen und des Fensters und damit der künftigen Stellfläche für die Küchenmöbel habe ich gar keine andere Wahl, als nur über den Türen (wenn überhaupt) zu verglasen. Ich bin schon heilfroh, dass mein Hobbyarbeitsplatz (bin leidenschaftliche Köchin und Bäckerin, koche ein und mache Wurst, etc.) endlich groß genug wird.
Ich wünsche mir zwar mehr Tageslicht in der Küche, aber nicht um jeden Preis. Sprich, das Ganze soll vernünftig aussehen. Wenn es dafür nur halbherzige Lösungen gibt, lass ich es.
Im Moment warte ich auf die Einschätzung des Denkmalschützers. Und auf eine positive "Bauchregung" meinerseits. Die hat sich nämlich noch nicht eingestellt.
Liebe Grüße
Ulrike
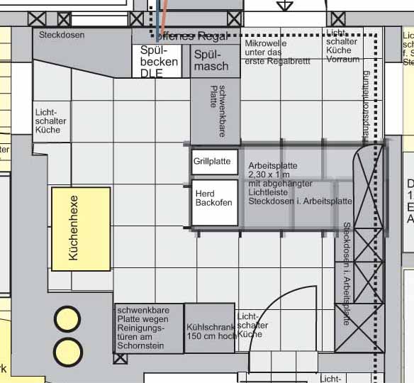
Nachtrag: hab mal den Küchengrundriss mit geplanter Einrichtung angehängt.
aufgrund der Anordnung der Wände, Türen und des Fensters und damit der künftigen Stellfläche für die Küchenmöbel habe ich gar keine andere Wahl, als nur über den Türen (wenn überhaupt) zu verglasen. Ich bin schon heilfroh, dass mein Hobbyarbeitsplatz (bin leidenschaftliche Köchin und Bäckerin, koche ein und mache Wurst, etc.) endlich groß genug wird.
Ich wünsche mir zwar mehr Tageslicht in der Küche, aber nicht um jeden Preis. Sprich, das Ganze soll vernünftig aussehen. Wenn es dafür nur halbherzige Lösungen gibt, lass ich es.
Im Moment warte ich auf die Einschätzung des Denkmalschützers. Und auf eine positive "Bauchregung" meinerseits. Die hat sich nämlich noch nicht eingestellt.
Liebe Grüße
Ulrike
Nachtrag: hab mal den Küchengrundriss mit geplanter Einrichtung angehängt.
- Dateianhänge
-
- kueche.jpg
- (38.07 KiB) 27-mal heruntergeladen
-
Harald Wieder
- Nicht angemeldeter User

Re:Entscheidungshilfe / mehr Tageslicht in der Küche
Was spricht gegen (oder für) eine Lösung wie auf dem angehängten Bild?
Gruß
Harald Wieder
Gruß
Harald Wieder
- Dateianhänge
-
- oberlicht.JPG
- (197.3 KiB) 29-mal heruntergeladen
- Stefan Haar
- Globaler Moderator

- Beiträge: 888
- Registriert: Sa 15. Feb 2003, 23:59
- Wohnort: Wolfenbüttel
- Kontaktdaten:
Re:Entscheidungshilfe / mehr Tageslicht in der Küche
@ Harald:
... geht's Dir um die Kugelleuchte oder um die Glasteilung?
... geht's Dir um die Kugelleuchte oder um die Glasteilung?
AG-Bautechnik der IGB
Dipl.-Ing. Architekt
Beiträge im Forum können lediglich allgemeine Betrachtungen und daher reine Meinungsäußerungen sein. Bei konkreten Sanierungsproblemen ist eine Einzelberatung durch einen Sachkundigen vor Ort zwingend erforderlich.
Dipl.-Ing. Architekt
Beiträge im Forum können lediglich allgemeine Betrachtungen und daher reine Meinungsäußerungen sein. Bei konkreten Sanierungsproblemen ist eine Einzelberatung durch einen Sachkundigen vor Ort zwingend erforderlich.
-
Harald Wieder
- Nicht angemeldeter User

Re:Entscheidungshilfe / mehr Tageslicht in der Küche
Natürlich um die Kugelleuchte. ;-)
- Ralf Femmer | KS Freiberg
- Senior Member

- Beiträge: 903
- Registriert: Mo 5. Mai 2003, 13:03
- Wohnort: Zittau / Sachsen
- Kontaktdaten:
Re:Entscheidungshilfe / mehr Tageslicht in der Küche
Hallo Ullrike,
Harald's Variante finde ich vertretbar und wahrscheinlich sogar noch sehr reizvoll.
Bei Deiner Küchenplanung ist es mir allerdings sehr schwer gefallen, mir die üblichen Verkehrssituationen zwischen den verschiedenen Eingängen vorzustellen.
Den Durchgang mit der abklappbaren Arbeitplatte würde ich mir eher sparen. Eventuell käme für mich auch eher ein im Raum angeordneter Küchenblock in Frage. Das würde den Raum m. A. nach einfach etwas offener gestalten.
Allerdings müsstest du dir dann mit der Küchenhexe (was immer das auch ist) etwas anderes einfallen lassen.
Oder wolltest du gar keinen Kommentar zu deiner Küche?
fg
Ralf
Harald's Variante finde ich vertretbar und wahrscheinlich sogar noch sehr reizvoll.
Bei Deiner Küchenplanung ist es mir allerdings sehr schwer gefallen, mir die üblichen Verkehrssituationen zwischen den verschiedenen Eingängen vorzustellen.
Den Durchgang mit der abklappbaren Arbeitplatte würde ich mir eher sparen. Eventuell käme für mich auch eher ein im Raum angeordneter Küchenblock in Frage. Das würde den Raum m. A. nach einfach etwas offener gestalten.
Allerdings müsstest du dir dann mit der Küchenhexe (was immer das auch ist) etwas anderes einfallen lassen.
Oder wolltest du gar keinen Kommentar zu deiner Küche?
fg
Ralf
Äußerungen im Forum sind lediglich allgemeine Betrachtungen und daher reine Meinungsäußerungen. Bei Rechtsfragen wird in jedem Fall eine Beratung durch einen Rechtsanwalt empfohlen, bei Sanierungsproblemen eine Einzelberatung durch einen Sachkundigen vor Ort.
-
Ulrike Nolte
- Nicht angemeldeter User

Re:Entscheidungshilfe / mehr Tageslicht in der Küche
Ne Ralf, d e n Kommentar hatte ich nu gar nicht erwartetRalf Femmer hat geschrieben: Oder wolltest du gar keinen Kommentar zu deiner Küche?![]()
Eine s.g. moderne Küche kommt mir nicht ins Haus. In der Hinsicht bin ich extrem stur ...
Du weißt nicht, was eine Küchenhexe ist?: Oma's Holzherd - man konnte auch Kohle darin verbrennen. So einen mit Wasserschiffchen an der Seite und einer Reling (bei manchen) vorne und an den Seiten. Der muss dort hin, der gehört einfach zu so einer Küche. Wir hatten einen vorgefunden, leider völlig durchgebrannt. Neu und hochmodern kosten die einige Scheinchen ...
Ich mache gerade ein Gefach über einer Türe auf um zu sehen, wie viel Licht ich dadurch gewinne. Es fällt mir immer noch schwer, die verglasten Gefache zu projezieren.
Verschneite Grüße
Ulrike
-
Ulrike Nolte
- Nicht angemeldeter User

Re:Entscheidungshilfe / mehr Tageslicht in der Küche
@Harald
hm, das sieht an sich gut aus. Ursprünglich dachte ich auch an so eine Lösung. Aber dann wurde ich unsicher ob es auch passt. Sonst habe ich keine großen Probleme, etwas zu projezieren. In dem Fall bin ich einfach sehr unschlüssig.
Grüße
Ulrike
hm, das sieht an sich gut aus. Ursprünglich dachte ich auch an so eine Lösung. Aber dann wurde ich unsicher ob es auch passt. Sonst habe ich keine großen Probleme, etwas zu projezieren. In dem Fall bin ich einfach sehr unschlüssig.
Grüße
Ulrike
- Ralf Femmer | KS Freiberg
- Senior Member

- Beiträge: 903
- Registriert: Mo 5. Mai 2003, 13:03
- Wohnort: Zittau / Sachsen
- Kontaktdaten:
Re:Entscheidungshilfe / mehr Tageslicht in der Küche
OK. Bei einer Küchenhexe hatte ich ein bischen an ein Hilfsmittel wie eine Küchenmaschiene gedacht. In unseren Breiten nennen wir die "Hexe" Kochmaschine oder eben Herd, je nachdem ob selbiger wie bei dir lose steht Küchenmaschine) oder eben wie ein Kachelofen aufgebaut ist (Herd).
Und das du Materialien wie MDF etc. in dein Haus lässt, hatte ich sowieso nicht wirklich erwartet.
FG
Ralf
Und das du Materialien wie MDF etc. in dein Haus lässt, hatte ich sowieso nicht wirklich erwartet.
FG
Ralf
Äußerungen im Forum sind lediglich allgemeine Betrachtungen und daher reine Meinungsäußerungen. Bei Rechtsfragen wird in jedem Fall eine Beratung durch einen Rechtsanwalt empfohlen, bei Sanierungsproblemen eine Einzelberatung durch einen Sachkundigen vor Ort.
- Stefan Haar
- Globaler Moderator

- Beiträge: 888
- Registriert: Sa 15. Feb 2003, 23:59
- Wohnort: Wolfenbüttel
- Kontaktdaten:
Re:Entscheidungshilfe / mehr Tageslicht in der Küche
... ich will ja nix sagen, aber ich halte es immer für gefährlich, einen Raum nur von der Innenseite zu betrachten ... entscheidend dürfte hier doch das zu erwartende Erscheinungsbild der Fassade von Außen sein. Es müßte vielleicht einfach mal genau aufgezeichnet werden - und dann die verschiedenen Belichtungsvarianten einbauen - und dann haben wir eine brauchbare Entscheidungsgrundlage 
AG-Bautechnik der IGB
Dipl.-Ing. Architekt
Beiträge im Forum können lediglich allgemeine Betrachtungen und daher reine Meinungsäußerungen sein. Bei konkreten Sanierungsproblemen ist eine Einzelberatung durch einen Sachkundigen vor Ort zwingend erforderlich.
Dipl.-Ing. Architekt
Beiträge im Forum können lediglich allgemeine Betrachtungen und daher reine Meinungsäußerungen sein. Bei konkreten Sanierungsproblemen ist eine Einzelberatung durch einen Sachkundigen vor Ort zwingend erforderlich.
-
Ulrike Nolte
- Nicht angemeldeter User

Re:Entscheidungshilfe / mehr Tageslicht in der Küche
Hallo Stefan,
Du sprichst von einer Aussenfassade - die gibt es in der Küche nur im Bereich des Fensters auf einer Breite von ca. 100 cm (1 Gefach). Davon sind ca. 60 cm Fensterausschnitt und zwar rechts genau in der Ecke zum Anbau.
Auf dem Plan ist
unten - die Türe zum Flur (Diele)
rechts - die Türe zum Bad
links - die Türe zum Esszimmer
oben - die Türe zur Werkstatt (Anbau)
Keine der Türen ist an einer Außenwand (Fassade).
Zeichnen wäre gut. Leider macht mein Mini-CAD Mucken. Es kann halt nicht so gut mit Individuallösungen umgehen.
Ich habe das Gefach über der Türe zum Bad nun offen und bin erstaunt, wie viel mehr Licht ich in der Küche habe.
Liebe Grüße
Ulrike
Du sprichst von einer Aussenfassade - die gibt es in der Küche nur im Bereich des Fensters auf einer Breite von ca. 100 cm (1 Gefach). Davon sind ca. 60 cm Fensterausschnitt und zwar rechts genau in der Ecke zum Anbau.
Auf dem Plan ist
unten - die Türe zum Flur (Diele)
rechts - die Türe zum Bad
links - die Türe zum Esszimmer
oben - die Türe zur Werkstatt (Anbau)
Keine der Türen ist an einer Außenwand (Fassade).
Zeichnen wäre gut. Leider macht mein Mini-CAD Mucken. Es kann halt nicht so gut mit Individuallösungen umgehen.
Ich habe das Gefach über der Türe zum Bad nun offen und bin erstaunt, wie viel mehr Licht ich in der Küche habe.
Liebe Grüße
Ulrike
- Stefan Haar
- Globaler Moderator

- Beiträge: 888
- Registriert: Sa 15. Feb 2003, 23:59
- Wohnort: Wolfenbüttel
- Kontaktdaten:
Re:Entscheidungshilfe / mehr Tageslicht in der Küche
Hallo Ulrike,
ich mache mir halt eben immer gleich Sorgen wegen des äußeren Erscheinungsbildes.
Für den Innenbereich könnte ich mir auch eine "Ausfachung" mit Milchglasscheiben auf beiden Seiten vorstellen. In Kombination mit entsprechend geeigneten Leuchtstofflampen (gibt's heute auch schon dimmbar) zwischen den Glasscheiben könntest Du dann auch des Abends eine gleichmäßige Ausleuchtung erreichen und tagsüber die Transluzenz der Verglasung nutzen.
Herzliche Grüße aus Wolfenbüttel
Stefan
ich mache mir halt eben immer gleich Sorgen wegen des äußeren Erscheinungsbildes.
Für den Innenbereich könnte ich mir auch eine "Ausfachung" mit Milchglasscheiben auf beiden Seiten vorstellen. In Kombination mit entsprechend geeigneten Leuchtstofflampen (gibt's heute auch schon dimmbar) zwischen den Glasscheiben könntest Du dann auch des Abends eine gleichmäßige Ausleuchtung erreichen und tagsüber die Transluzenz der Verglasung nutzen.
Herzliche Grüße aus Wolfenbüttel
Stefan
AG-Bautechnik der IGB
Dipl.-Ing. Architekt
Beiträge im Forum können lediglich allgemeine Betrachtungen und daher reine Meinungsäußerungen sein. Bei konkreten Sanierungsproblemen ist eine Einzelberatung durch einen Sachkundigen vor Ort zwingend erforderlich.
Dipl.-Ing. Architekt
Beiträge im Forum können lediglich allgemeine Betrachtungen und daher reine Meinungsäußerungen sein. Bei konkreten Sanierungsproblemen ist eine Einzelberatung durch einen Sachkundigen vor Ort zwingend erforderlich.
-
Ulrike Nolte
- Nicht angemeldeter User

Re:Entscheidungshilfe / mehr Tageslicht in der Küche
Hallo Stefan,
ich verstehe Deine Sorgen um das äußere Erscheinungsbild sehr gut. Aber das wird ja nicht verändert (oder doch, aber zum Positiven und das ist auch eine ganz andere Baustelle).
Hat denn niemand hier solche Oberlichter bei sich selbst? Ich gestehe, dass ich ziemliche Probleme habe und fast schon aufgeben will.
Die Entfernung der Ausmauerung des Gefachs über der Türe zum Esszimmer brachte nichts Gutes zum Vorschein: Riegel und Beiständer haben massive Schädigungen durch Feuchtigkeit. Der Riegel ist hinüber und der Beiständer im oberen Bereich ebenfalls, da steckt sogar der Pilz drin. Leider werde ich nun Laibung und Bekleidung der Tür verlieren. Schuld ist die lecke Kehle
Ausgerechnet an einer der ältesten Türen ...
Traurige Grüße
Ulrike
ich verstehe Deine Sorgen um das äußere Erscheinungsbild sehr gut. Aber das wird ja nicht verändert (oder doch, aber zum Positiven und das ist auch eine ganz andere Baustelle).
Hat denn niemand hier solche Oberlichter bei sich selbst? Ich gestehe, dass ich ziemliche Probleme habe und fast schon aufgeben will.
Die Entfernung der Ausmauerung des Gefachs über der Türe zum Esszimmer brachte nichts Gutes zum Vorschein: Riegel und Beiständer haben massive Schädigungen durch Feuchtigkeit. Der Riegel ist hinüber und der Beiständer im oberen Bereich ebenfalls, da steckt sogar der Pilz drin. Leider werde ich nun Laibung und Bekleidung der Tür verlieren. Schuld ist die lecke Kehle
Ausgerechnet an einer der ältesten Türen ...
Traurige Grüße
Ulrike
- Sven Teske | KS Dahme-Spreewald
- Senior Member

- Beiträge: 502
- Registriert: Fr 29. Apr 2005, 11:10
- Wohnort: Berlin / Münchehofe (Brandenburg LDS)
- Kontaktdaten:
Re:Entscheidungshilfe / mehr Tageslicht in der Küche
Ahoi,
was befindet sich eigentlich über der Küche ? Sollte dort ein Dachboden sein, böte sich ein "Oberlicht" in der Decke an. Ich hatte so was in meinem Haus (sah aus wie man es von alten Segelschiffen kennt); das hat eine Menge Licht gebracht. So eine Lösung setzt natürlich voraus, dass man den Dachboden belichten kann. Das ist bei mir durch einige Glasziegel und einen Schornsteinfegerausstieg erfolgt. Besonders gut hatte mir das indirekte Licht gefallen.
Gruß, Sven.
was befindet sich eigentlich über der Küche ? Sollte dort ein Dachboden sein, böte sich ein "Oberlicht" in der Decke an. Ich hatte so was in meinem Haus (sah aus wie man es von alten Segelschiffen kennt); das hat eine Menge Licht gebracht. So eine Lösung setzt natürlich voraus, dass man den Dachboden belichten kann. Das ist bei mir durch einige Glasziegel und einen Schornsteinfegerausstieg erfolgt. Besonders gut hatte mir das indirekte Licht gefallen.
Gruß, Sven.
Teske + Schwiede Architekten
Sachverständige für Schäden an Gebäuden
Alle Beiträge im Forum sind ausschließlich allgemeine Betrachtungen und keinesfalls konkrete Sanierungsanleitungen oder Rechtsberatungen. Hierfür sind immer Einzelfallberatungen durch einen Sachkundigen vor Ort erforderlich.
Sachverständige für Schäden an Gebäuden
Alle Beiträge im Forum sind ausschließlich allgemeine Betrachtungen und keinesfalls konkrete Sanierungsanleitungen oder Rechtsberatungen. Hierfür sind immer Einzelfallberatungen durch einen Sachkundigen vor Ort erforderlich.
- Ralf Femmer | KS Freiberg
- Senior Member

- Beiträge: 903
- Registriert: Mo 5. Mai 2003, 13:03
- Wohnort: Zittau / Sachsen
- Kontaktdaten:
Re:Entscheidungshilfe / mehr Tageslicht in der Küche
Hallo Ullrike,
ich lasse die Oberlichter jetzt einfach mal außen vor. Die hier von Harald Wieder dargestellte Lösung halte ich für durchaus ansprechend. Auch die Variante, die Sven vorgeschlagen hat, kann sehr Reizvoll sein. Die Entscheidung triffst letztlich aber du.
Nun zu deiner Tür.
Nicht jeder Schaden geht gleich mit einem Totalverlust von "Laibung" und Bekleidung einher.
Aus rein denkmalpflegerischer Sicht, die immer einen Augenmerk auf den größtmöglichen Substanzerhalt hat, kann ich dir nur erwidern, das in den seltensten Fällen Aufgrund eines "Pilzbefalles" die komplette Bekleidung oder das ganze Futter ausgewechselt werden muss. Im Prinzip ist es völlig egal, welche Art von pflanzlichen Schädlingen in deinem Haus vorhanden sind, wenn du die Ursache, die die Entwicklung dieses ungebetenen Gastes erst ermöglicht hat, nachhaltig beseitigt hast, wirst du in Zukunft keinerlei Probleme mehr mit diesen Vertretern haben.
In Bezug auf deine Tür heißt das z.B., ein Türfutter muss nicht komplett erneuert werden, selbiges kann man auch reparieren. Z. B. werden geschädigte Bereiche herausgetrennt und Ersatzholz eingeblattet od. äh.. Selbst ein desolater Falz kann problemlos durch eine Hinterfräsung erneuert werden.
Ähnliches gilt für Bekleidungen. Auch hier können Stücke eingesetzt oder angesetzt werden.
Ausschlaggebend für die "Lebenserhaltung" solcher Bauteile sind aber eigentlich eine vernünftige Qualifikation des ausführenden Handwerkers und ein gutes Augenmaß.
Wirtschaftlich ist eine Erneuerung immer der (vermeintlich) einfachere Weg. Bei etwas, was dir aber (und wahrscheinlich ja auch entwicklungsgeschichtlich für das Haus) wichtig zu sein scheint, nicht unbedingt der richtige.
Ähnliches gilt für deine Türständer und Riegel.
Achte einfach darauf, dass vor der Reparatur des Fachwerkgefüges die Bekleidungen vorsichtig entfernt und das Futter vernünftig ausgebaut wird. Diese Sind in der Regel eingenagelt und können z. b. mit einem Alligator oder einem einfachen Metallsägeblatt getrennt werden. Die Bekleidungen bekommt man relativ Problemlos mit einem Stechbeitel und einem kleinen Kuhfuss gelöst.
Kernaussage: Wo ein Wille auch ein Weg.
Lg
Ralf
ich lasse die Oberlichter jetzt einfach mal außen vor. Die hier von Harald Wieder dargestellte Lösung halte ich für durchaus ansprechend. Auch die Variante, die Sven vorgeschlagen hat, kann sehr Reizvoll sein. Die Entscheidung triffst letztlich aber du.
Nun zu deiner Tür.
Nicht jeder Schaden geht gleich mit einem Totalverlust von "Laibung" und Bekleidung einher.
Aus rein denkmalpflegerischer Sicht, die immer einen Augenmerk auf den größtmöglichen Substanzerhalt hat, kann ich dir nur erwidern, das in den seltensten Fällen Aufgrund eines "Pilzbefalles" die komplette Bekleidung oder das ganze Futter ausgewechselt werden muss. Im Prinzip ist es völlig egal, welche Art von pflanzlichen Schädlingen in deinem Haus vorhanden sind, wenn du die Ursache, die die Entwicklung dieses ungebetenen Gastes erst ermöglicht hat, nachhaltig beseitigt hast, wirst du in Zukunft keinerlei Probleme mehr mit diesen Vertretern haben.
In Bezug auf deine Tür heißt das z.B., ein Türfutter muss nicht komplett erneuert werden, selbiges kann man auch reparieren. Z. B. werden geschädigte Bereiche herausgetrennt und Ersatzholz eingeblattet od. äh.. Selbst ein desolater Falz kann problemlos durch eine Hinterfräsung erneuert werden.
Ähnliches gilt für Bekleidungen. Auch hier können Stücke eingesetzt oder angesetzt werden.
Ausschlaggebend für die "Lebenserhaltung" solcher Bauteile sind aber eigentlich eine vernünftige Qualifikation des ausführenden Handwerkers und ein gutes Augenmaß.
Wirtschaftlich ist eine Erneuerung immer der (vermeintlich) einfachere Weg. Bei etwas, was dir aber (und wahrscheinlich ja auch entwicklungsgeschichtlich für das Haus) wichtig zu sein scheint, nicht unbedingt der richtige.
Ähnliches gilt für deine Türständer und Riegel.
Achte einfach darauf, dass vor der Reparatur des Fachwerkgefüges die Bekleidungen vorsichtig entfernt und das Futter vernünftig ausgebaut wird. Diese Sind in der Regel eingenagelt und können z. b. mit einem Alligator oder einem einfachen Metallsägeblatt getrennt werden. Die Bekleidungen bekommt man relativ Problemlos mit einem Stechbeitel und einem kleinen Kuhfuss gelöst.
Kernaussage: Wo ein Wille auch ein Weg.
Lg
Ralf
Äußerungen im Forum sind lediglich allgemeine Betrachtungen und daher reine Meinungsäußerungen. Bei Rechtsfragen wird in jedem Fall eine Beratung durch einen Rechtsanwalt empfohlen, bei Sanierungsproblemen eine Einzelberatung durch einen Sachkundigen vor Ort.